CHATA LIPNICE, 2024


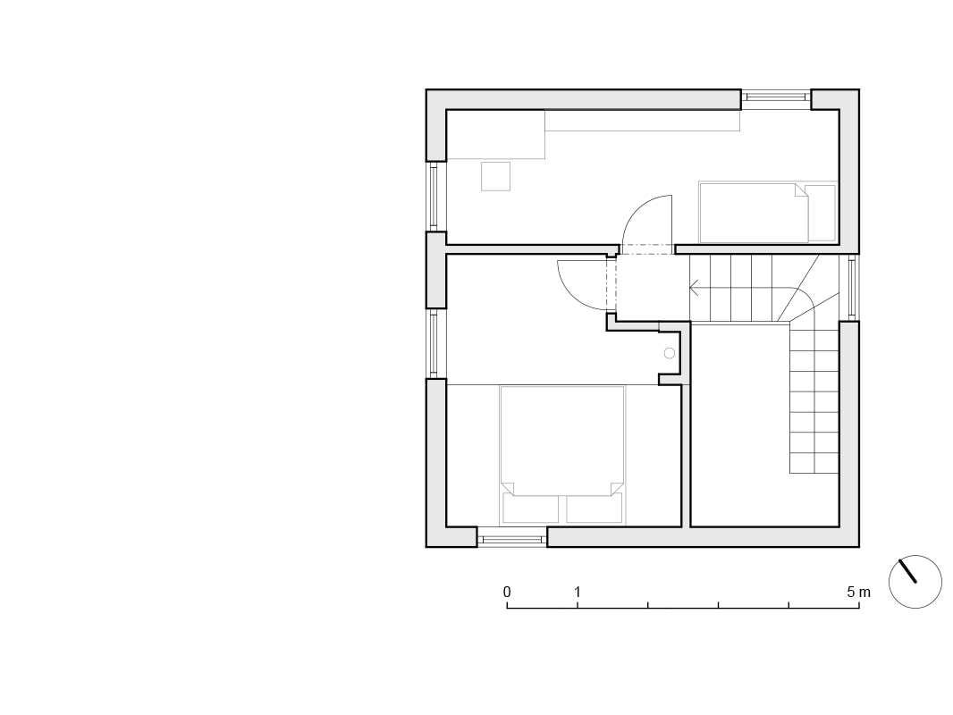
Chata lipnice je zasazena do okolní krajiny a je navržena s maximálním akcentem na možnost využít velkorysých výhledů do krajiny naplno. Jedná se o dřevostavbu určenou k rekreaci. V návaznosti na chatu je navržena pobytová terasa se saunou.

 

                       

Návrh: ATELIER HRA

Realizace: formou DESIGN & BUILD - ATELIER HRA


© Atelier HRA. All rights reserved.